Heek-Nienborg – Achter de Stadt 35
Neubau eines Wohnhauses mit 9 Wohnungen (öffentlich gefördert) in Heek-Nienborg.
Ruhige Lage „Achter de Stadt 33“, kurze Wege ins Zentrum.
Ab
6,78 €
pro qm
Auf einen Blick
Standort: Heek-Nienborg, Achter de Stadt 33
Nutzungsart: Wohnen
Wohnungen gesamt: 9
2-Zimmer: 3
3-Zimmer: 6
PKW-Außenstellplätze: 9
Zusätzliche Abstellräume: 9
Geplante Fertigstellung: Januar 2026
Kaution: 3 Kaltmieten
9
Wohnungen
6x
3-Zimmer
3x
2-Zimmer
9
PKW-Stellplätze
Haben Sie Interesse an einer geförderten Wohnung?
Bewerben Sie sich unkompliziert über unsere Mieter-Selbstauskunft. Halten Sie dafür bitte Basisangaben bereit (z. B. Name, Arbeitgeber, Haushaltsgröße/Kinder, Haustiere). Voraussetzung ist ein gültiger Wohnberechtigungsschein (WBS) – eine Vermietung an Nicht-Berechtigte ist leider nicht möglich.
Laden Sie die Mieter-Selbstauskunft hier herunter:
Senden Sie das ausgefüllte Formular anschließend per E-Mail an info@ahro-bau.de.
Wir bestätigen den Eingang und melden uns zeitnah mit den nächsten Schritten.
Hinweis: Ihre Angaben nutzen wir ausschließlich zur Wohnungsvergabe.

Durchdacht auf allen Ebenen
Der Gebäudeschnitt zeigt die klare Gliederung vom Kellergeschoss bis ins Dachgeschoss mit zentraler Erschließung und kompakten Technik- und Nebenräumen. Rechts zu sehen: der Systemschnitt der Fahrradgarage – ebenerdig, witterungsgeschützt und nah am Eingang.
Vorteile & Highlights
Bezahlbarer Wohnraum
in moderner Bauweise – ideal für Singles, Paare, kleine Familien und Senior:innen
Komfortabel & praktisch
Aufzug, kurze Wege, Abstellräume und Fahrradgarage.
Durchdachte Grundrisse
Klare Trennung von Wohnen/Essen und Schlafbereichen; Außenflächen je WE laut Plan
Mitten im Grünen
Die Wohnungen befinden sich in unmitellbarer Nähe zur Dinkel und der historischen Wassermühle.
Versorgung
Ein K+K Markt ist in 400 m Entfernung vorhanden. Direkt in der Nachbarschaft befindet sich ein Zahnarzt, eine Bäckerei, eine Apotheke.
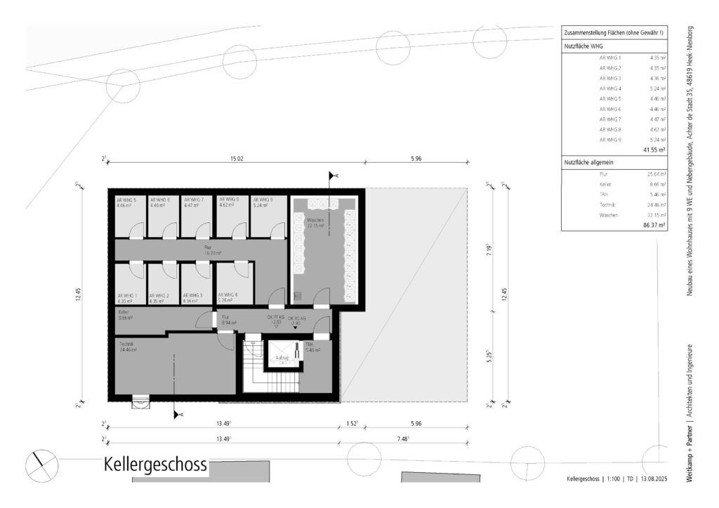
Erdgeschoss
Wohnung 1
101 Flur
102 AR 2.02 m²
103 Wohnen | Essen 25.03 m²
104 Zimmer 10.25 m²
105 Schlafen 15.54 m²
106 Bad 8.06 m²
107 Terasse (25%) 1.51 m²
69.94 m²
Wohnung 2
201 Flur 3.41 m²
202 AR 1.82 m²
203 Bad 6.20 m²
204 Schlafen 14.20 m²
205 Wohnen | Essen 22.69 m²
206 Terrasse (25%) 1.51 m²
49.83 m²
Wohnung 3
301 Flur 7.53
302 AR 2.02 m²
303 Wohnen | Essen 25.03 m²
304 Zimmer 10.25 m²
305 Schlafen 15.54 m²
306 Bad 8.06 m²
307 Terrasse (25%) 1.51 m²
69.94 m²
Obergeschoss
Wohnung 4
401 Flur 7.53 m²
402 AR 2.02 m²
403 Wohnen | Essen 25.03 m²
404 Zimmer 10.25 m²
405 Schlafen 15.54 m²
406 Bad 8.06 m²
407 Terasse (25%) 1.51 m²
69.94 m²
Wohnung 5
501 Flur 3.41 m²
502 AR 1.82 m²
503 Bad 6.20 m²
504 Schlafen 14.20 m²
505 Wohnen | Essen 22.69 m²
506 Terrasse (25%) 1.51 m²
49.83 m²
Wohnung 6
601 Flur 7.53 m²
602 AR 2.02 m²
603 Wohnen | Essen 25.03 m²
604 Zimmer 10.25 m²
605 Schlafen 15.54 m²
606 Bad 8.06 m²
607 Terrasse (25%) 1.51 m²
69.94 m²
Dachgeschoss
Wohnung 7
701 Flur 7.53 m²
702 AR 2.27 m²
703 Wohnen | Essen 22.01 m²
704 Zimmer 10.25 m²
705 Schlafen 11.84 m²
706 Bad 7.30 m²
707 Balkon (25%) 1.51 m²
62.71 m²
Wohnung 8
801 Flur 3.45 m²
802 AR 2.11 m²
803 Bad 6.29 m²
804 Wohnen | Essen 12.53 m²
805 Wohnen | Essen 20.80 m²
806 Balkon (25%) 1.51 m²
46.69 m²
Wohnung 9
703 Wohnen | Essen 22.01 m²
706 Bad 7.30 m²
901 Flur 7.53 m²
902 AR 2.27 m²
904 Zimmer 10.25 m²
905 Schlafen 11.84 m²
907 Balkon (25%) 1.51 m²




